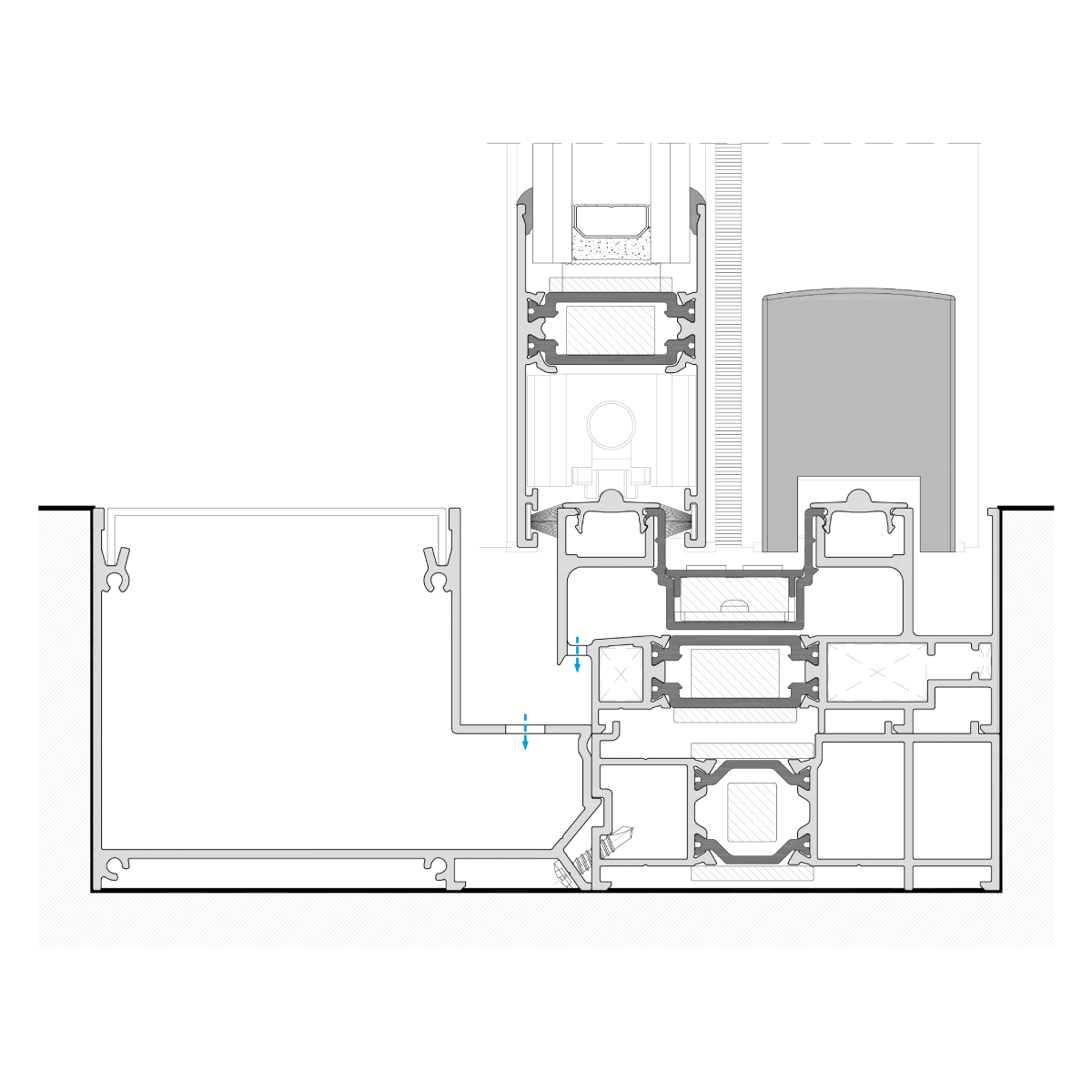
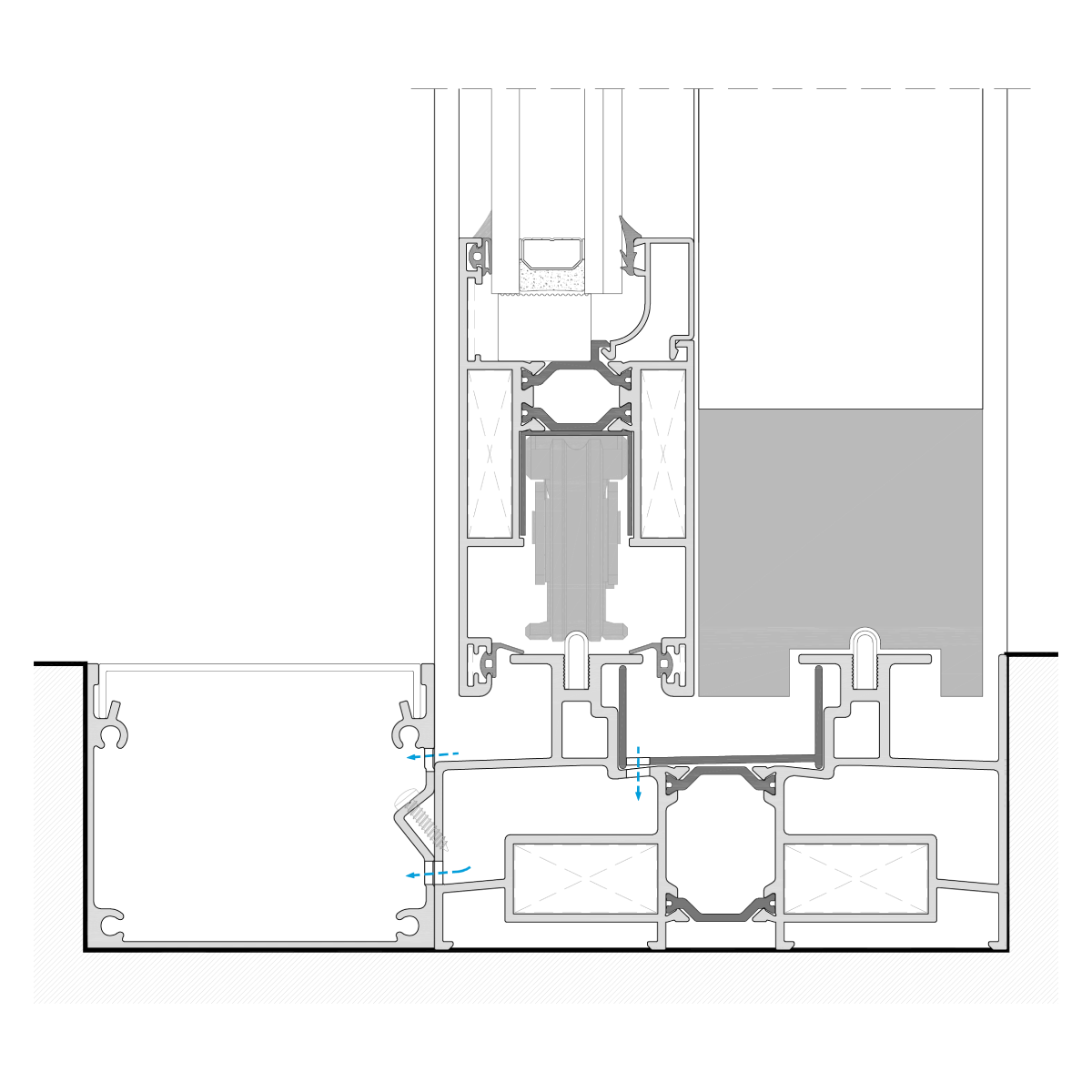
Sistemas Correderas
sistemas de correderas de última generación combinan perfiles de aluminio con rotura de puente térmico y un diseño de alto rendimiento
IT-61CR EVO RPT
| Material | Aluminio con rotura de puente térmico |
| Tipología | Corredera evolutiva con RPT |
| Permeabilidad al aire | Clase 3 |
| Estanqueidad al agua | 7A |
| Resistencia al viento | C4 |
| Transmitancia térmica Uw | ≈1.50 W/m2K |
| Aislamiento acústico | 41 dB |
| Acristalamiento máximo | Hasta 28 mm |
| Dimensiones máximas recomendadas | 1700×2700 mm |
| Peso máximo por hoja | 180 kg |
IT-160 ELV RPT
| Material | Aluminio con rotura de puente térmico |
| Tipología | Puerta corredera elevable con RPT |
| Permeabilidad al aire | Clase 4 |
| Estanqueidad al agua | Clase 900 |
| Resistencia al viento | Clase C5 |
| Transmitancia térmica Uw | ≈0.80-1.03 W/m2K |
| Aislamiento acústico | No disponible claro (sin valor visible) |
| Acristalamiento máximo | Hasta 55 mm |
| Dimensiones máximas recomendadas | 3000×2300 mm |
| Peso máximo por hoja | 440 kg |
S-LIM
| Material | Aluminio con rotura de puente térmico |
| Tipología | Corredera minimalista / corredera con estética reducida |
| Permeabilidad al aire | Clase 3 |
| Estanqueidad al agua | 7A |
| Resistencia al viento | Clase CE2100 |
| Transmitancia térmica Uw | Hasta 1.0 W/m2K |
| Aislamiento acústico | 36 dB |
| Acristalamiento máximo | Hasta 32 mm |
| Dimensiones máximas recomendadas | 2700×2700 mm |
| Peso máximo por hoja | 300 kg |
Elevable GR
| Material | Aluminio con rotura de puente térmico |
| Tipología | Corredera elevable |
| Permeabilidad al aire | Clase 4 |
| Estanqueidad al agua | 7A |
| Resistencia al viento | Clase C4 |
| Transmitancia térmica Uw | Hasta 1.10 W/m2K |
| Aislamiento acústico | 35 dB |
| Acristalamiento máximo | Hasta 39 mm |
| Dimensiones máximas recomendadas | 3300×3200 mm |
| Peso máximo por hoja | 400 kg |
a tu servicio
Preséntenos su idea y le aportaremos la experiencia y el soporte técnico que necesita.










